Appartamento in Vendita a Lecce - Via Zanardelli

Trattativa in corso
€ 258.000

Descrizione immobile

In una delle zone più prestigiose e centrali di Lecce, proponiamo in vendita un raffinato trilocale situato al primo piano di un palazzo signorile, servito da ascensore. L'appartamento, recentemente ristrutturato con finiture di pregio, si distingue per l’eccellente luminosità e l’ottima distribuzione degli spazi interni.
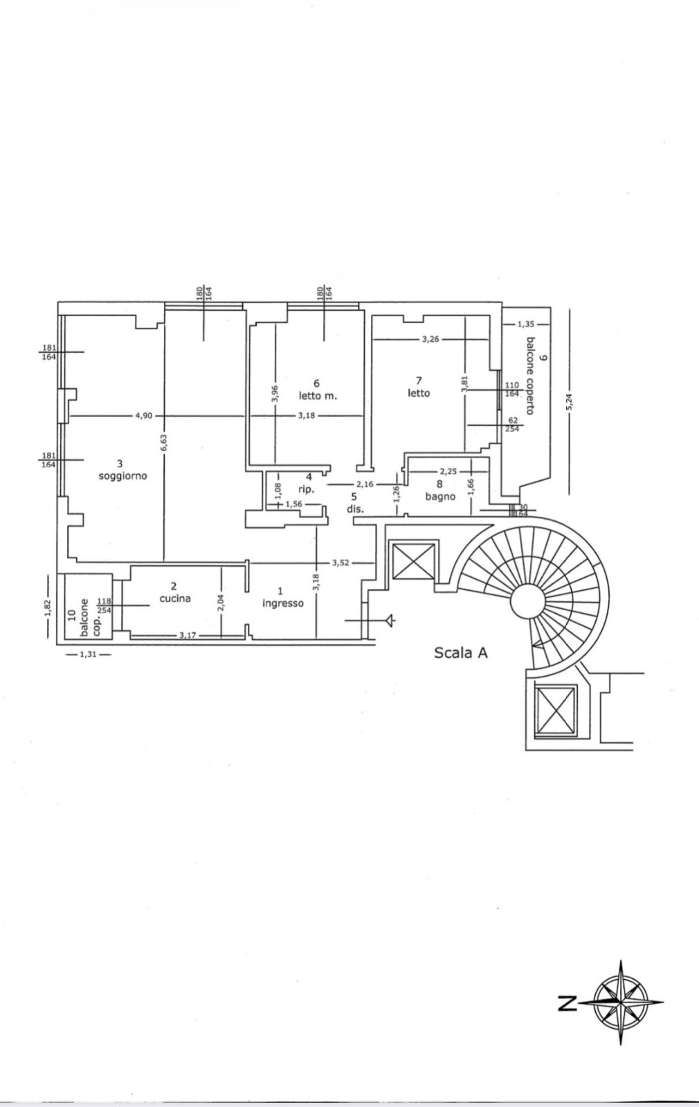
L’ingresso, si apre su un ampio e accogliente soggiorno, impreziosito da tre grandi vetrate che affacciano su una rinomata piazzetta ricca di verde, garantendo luce naturale durante tutto l’arco della giornata. La cucina è separata e funzionale, dotata di porta finestra con accesso su un balcone, ideale per momenti di relax all'aperto. A seconda delle esigenze, la zona giorno potrebbe essere unificata alla cucina, offrendo un unico grande openspace.
Un comodo disimpegno conduce alla zona notte, composta da due camere da letto, di cui una con accesso diretto a un ulteriore balcone abitabile. Completano la proprietà un bagno finestrato con vasca e un pratico ripostiglio.
L'immobile è libero su tre lati, climatizzato, termoautonomo e perfettamente areato, caratteristiche che lo rendono estremamente confortevole in ogni stagione dell’anno.
Soluzione ideale per chi cerca un'abitazione centrale, elegante e pronta da abitare, nel cuore pulsante della città.

Pratica RQ/96
Vani 5
Superficie commerciale 105 mq
Superficie utile 100 mq
Piano primo
Totale Piani 5
Stato Ottimo
Letti 2
Bagni 1
Spese Condominiali 55 €
Classe energetica
Planimetria

Indirizzo e mappa



Inviaci una mail

Errequadro Agenzia Immobiliare Lecce
Via 95° Reggimento Fanteria, 31
73100 Lecce (LE)
Tel: +39 0832.346096
Cell: +39 338.9910791

Nome E-mail Telefono
Messaggio

Acconsento al trattamento dei dati (leggi)


  Stampa scheda immobile